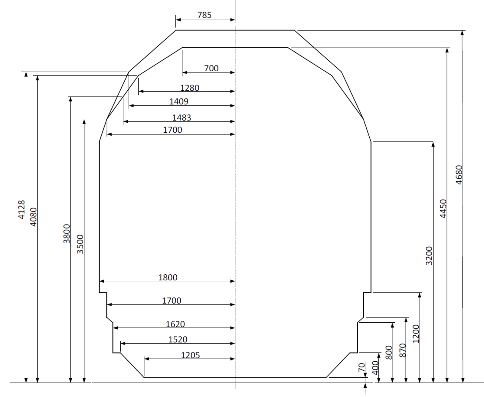
JBV NO1 – prEN 15273 Dynamisk profil
Bane NOR kan tilby det nasjonale Dynamisk profil NO1 på hele jernbanenettet jernbanenettetDet jernbanenettet Bane NOR forvalter, som er hele det norske jernbanenettet..
I tillegg tilbyr Bane NOR på forespørsel Dynamisk profil NO2 for toetasjes materiell og tømmertransport på noen strekninger.
NO1 og NO2 må ses sammen med de oppgitte regneregler.
Last ned

Bane NOR NO1 (lavere) og NO2 (høyere) dynamisk profil.